摘要
能集装箱电池包在电力系统中的应用变得越来越普遍。然而,在电池包的周转和转运过程中,我们面临着许多挑战,包括其重量大、形状不规则、易受损等问题。传统的转运方式通常依赖于人工操作,这不仅效率低下,而且存在安全隐患。
本文深入探讨了国内外周转小车的发展历程和当前状况,分析了周转小车研究过程中的关键问题及其解决方案,并提出了周转小车的总体设计流程和方案规划。研究的核心聚焦于机械结构、动力学和运动学分析。同时,本文还讨论了设计过程中遇到的问题和设计时应考虑的要点。
关键词:周转小车;结构设计;solidworks;电池包
目录
1 绪论 9
1.1 研究背景以及意义 9
1.1.1 研究背景 9
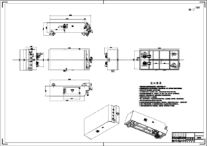
1.1.2 电池包周转要求 10
1.1.3 研究目的与意义 11
1.2 研究现状 11
1.2.1 国内研究现状 11
1.2.2 国外研究现状 13
1.3 周转小车在行业中的应用 14
1.3.1 物料移栽 14
1.3.2 柔性组装线、生产线 15
1.3.3 特殊应用场景 15
1.4 本章小结 16
2 周转小车整体设计方案 17
2.1 设计方案步骤 17
2.2 设计的主要内容 17
2.3 拟解决的主要问题和最终目标 18
2.4 论文特色或创新点 18
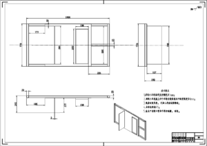
2.5 周转方案设计 18
2.6 本章小结 21
3 周转小车的机械设计 22
3.1 周转小车的基本构成 22
3.2 设计参数 22
3.3 车架体结构 23
3.3.1 焊接变形产生的原因 23
3.3.2 焊接变形分类 23
3.3.3 影响焊接结构变形的因素 24
3.3.4 预防焊接变形的措施 25
3.4 本章小结 27
4 驱动与转向系统设计 28
4.1 驱动和转向系统方案 28
4.2 电机的结构图及其主要参数的选取 30
4.2.1 驱动伺服电机的选取过程 32
4.2.2 转弯伺服电机的选取过程 33
4.3 驱动减速器设计校核 35
4.4 转向减速器设计校核 38
4.5 本章小结 42
5 传动结构校核 43
5.1 联轴器的设计校核 43
5.2 车轮轴的校核 44
5.2.1 轴的结构设计 44
5.2.2 求轴上的载荷 45
5.2.3 按弯曲应力校核轴的强度 46
5.3 车轮校核选型 46
5.4 本章小结 47
6 总 结 48
参考文献 49
致 谢 51
说明书




三维模型

CAD图纸
文件列表
