摘要
随着农业机械化进程的加快和畜牧业对优质饲料需求的不断增加,小型农用玉米秸秆青饲料切割机的研究与开发显得尤为重要。玉米秸秆作为丰富的农作物副产物,经过适当处理后可作为优质的青饲料,提高饲料的利用率,降低养殖成本。然而,传统的手工处理方式效率低下,劳动强度大,难以满足现代化农业生产的需求。因此,设计一种结构紧凑、操作简便、切割效率高的小型农用玉米秸秆青饲料切割机,对于促进畜牧业发展和农业机械化具有重要意义。
本文旨在设计一种小型农用玉米秸秆青饲料切割机,并对其主要部件进行有限元分析。首先,通过调研和分析现有青饲料切割机的研究现状和技术特点,结合实际需求,提出一种新型的小型玉米秸秆青饲料切割机的设计方案。该方案包括动力传动系统、切割装置、喂料装置、抛送装置等主要部分的设计。其次,利用三维建模软件建立切割机各主要部件的三维模型,为后续的有限元分析提供基础。然后,采用有限元分析软件对切割机的关键部件,如切割刀具、传动轴等进行应力和变形分析,评估其结构强度和可靠性。最后,根据有限元分析结果,对切割机的设计进行优化,提高其工作性能和使用寿命。通过本文的研究,旨在为小型农用玉米秸秆青饲料切割机的设计和制造提供理论依据和技术支持。
关键词:青饲切割机;农业机械;结构设计;有限元分析
目录
第1章 绪论 6
1.1 研究背景和意义 6
1.2 国内外研究现状 6
1.2.1 国内青饲料切碎装置设计与结构优化研究 6
1.2.2 不同作物青饲料切碎装置的针对性研究 7
1.2.3 关键部件有限元分析与优化研究 7
1.2.4 切碎装置性能试验与参数优化研究 8
1.2.5 小型青饲料切碎机械发展现状与推广研究 8
1.3 本文主要研究内容 9
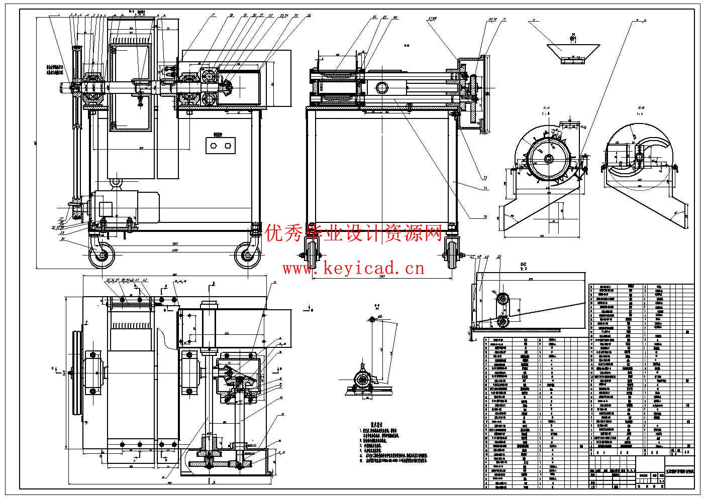
第2章 总体设计 10
2.1 方案筛选比较 10
2.2 设计方案的确定 11
2.3 机构传动原理 12
第3章 传动装置设计 14
3.1 整体计算 14
3.1.1 总传动比的分析计算 14
3.1.2 传动比的分配 15
3.2 电动机的选型 15
3.3 V带传动部分的设计 15
3.3.1 V带轮设计的要求 15
3.3.2 V带轮的材料 15
3.3.3 V带轮的结构尺寸 16
3.3.4 V带轮的传动设计 16
3.3.5 V带轮的结构设计 18
3.3.6 V带轮的结构参数 18
3.4 锥齿轮的设计 19
3.4.1 齿轮材料的选择 19
3.4.2 齿轮精度等级的选择 20
3.4.3 按齿轮齿面接触强度设计 20
3.4.4 按齿轮齿根弯曲强度校核 22
3.4.5 零件图和大小齿轮的啮合示意图 23
3.5 圆柱斜齿轮的设计 24
3.5.1 按齿轮齿根弯曲强度设计 26
3.5.2 几何计算 28
3.5.3 验算 28
第4章 轴的设计与校核 30
4.1 主轴I及其轴承装置、键的设计 30
4.2 传动轴II的设计 31
4.3 主轴I及其轴承装置、键的校核 32
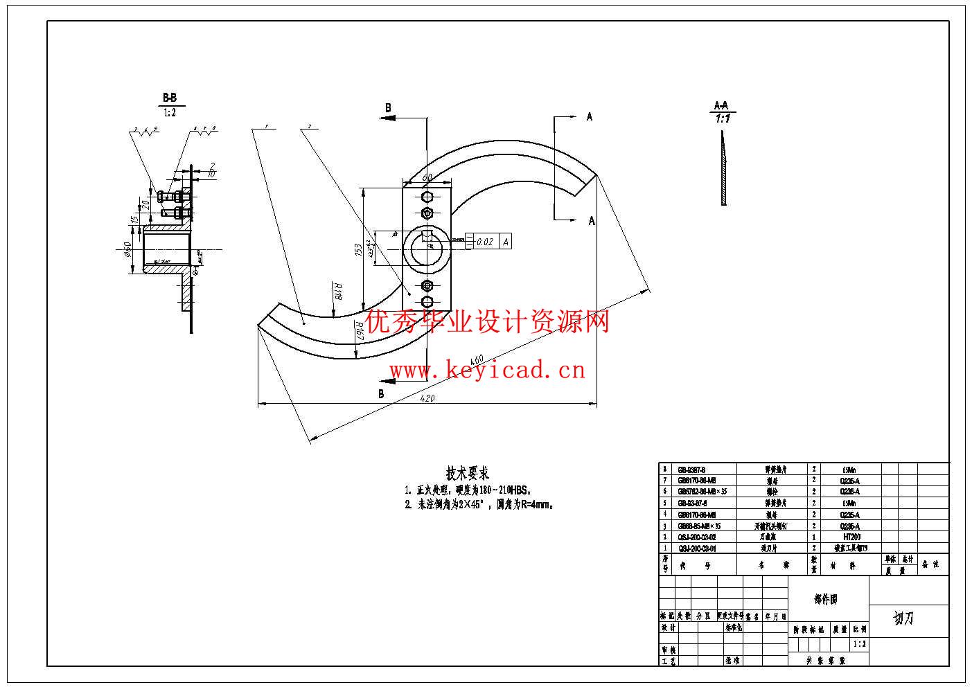
第5章 切刀设计及机架设计 39
5.1 4.1 切刀设计 39
5.1.1 切刀材料及要求 39
5.1.2 4.1.2 常见刀片 39
5.1.3 切刀的设计 39
5.1.4 物料钳住所需条件 40
5.2 破碎辊筒刀的设计 42
5.2.1 破碎辊筒设计 42
5.2.2 动力匹配与扭矩计算 42
5.2.3 刀具布局与力学分析 42
5.3 破碎辊筒上刀的设计 43
5.3.1 刀在破碎辊筒上的位置 43
5.3.2 刀具参数及设计条件 44
5.3.3 切割力计算 44
5.3.4 刀具弯曲应力校核 45
5.4 自动进给机构设计 45
5.5 机架设计 46
第6章 主要部件有限元分析 47
6.1 有限元分析技术及ANSYS WORKBENCH概述 47
6.2 主轴与切割刀片在设备中的作用及工作环境 47
6.3 有限元仿真过程及结果 48
6.3.1 仿真准备 48
6.3.2 网格划分 48
6.3.3 边界条件与载荷施加 49
6.3.4 求解与后处理 49
6.3.5 仿真结果分析 51
第7章 总结与展望 52
7.1 总结 52
7.2 展望 52
参考文献 53
致 谢 55
说明书

三维模型

CAD图纸
文件列表

