摘要
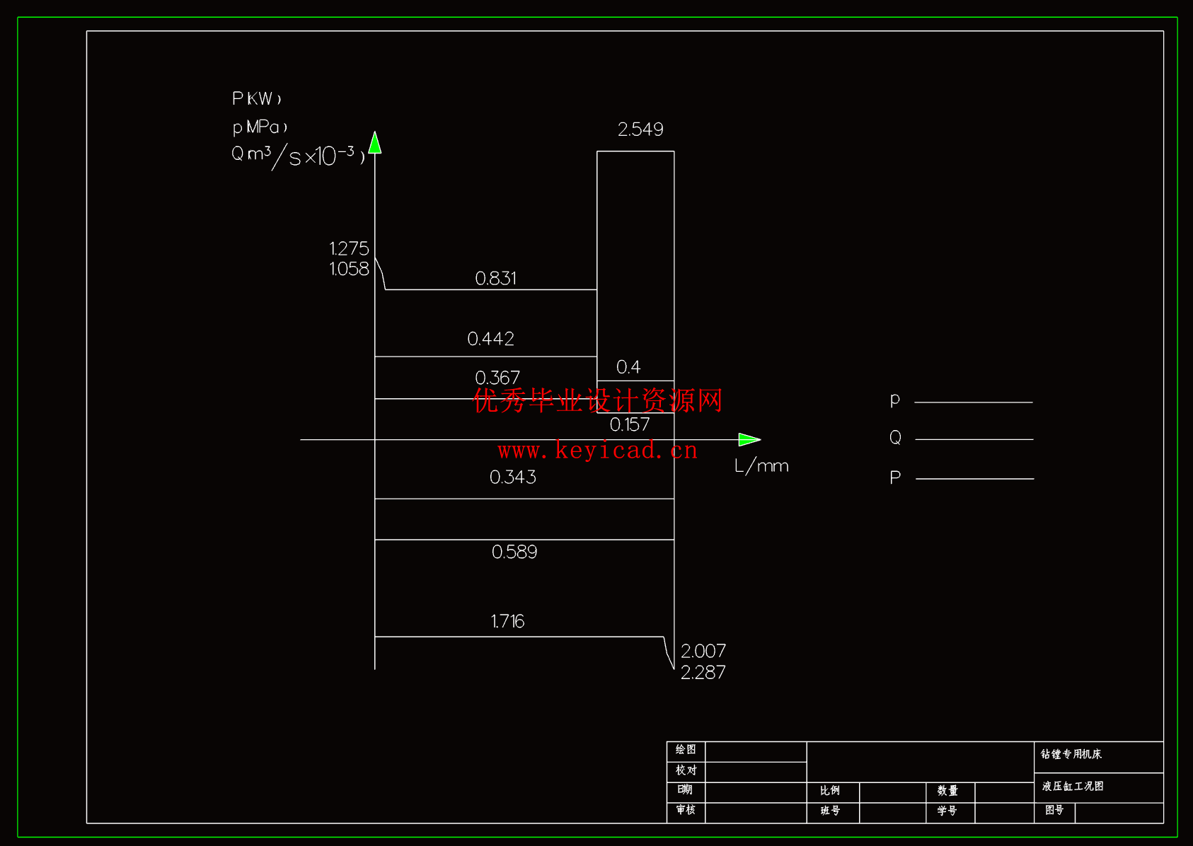
设计一台加工铸铁箱体上的孔系的钻镗专用机床的液压系统。其工作循环是:快进→工进→快退一原位停止。加工时最大切削力为1500kgf,动力头自重为1800kgf,要求在工作进给20-1200mm/min内无极调速,快进与快退速度均为6m/min,动力头导轨为平导轨,静摩擦系数为0.2,动摩擦系数为0.1,最大行程为350mm,工进行程为180mm,机床加工时要求动力头快速时平稳可靠,加工终了时,动力头自动返回原位。设计该机床的液压传动系统。完成以下设计任务:
1.设计计算
根据给定参数及工况,确定系统的主要参数,拟定液压系统原理图。
选择液压元件,分析验算液压系统的主要性能。
2.绘制图纸
(1)绘制液压系统原理图
(2)绘制液压缸装配图
3.设计计算说明书
按要求撰写上述1、2 两项的设计计算说明书。

说明书

CAD图纸
