摘要
随着农机行业的不断的进步和发展,耕耘机械也发生了较大变革。旋耕机因其具有碎土能力强、耕后地表平坦等特点,被广泛应用于农业生产中。旋耕机的设计水平决定其耕作的好坏,进而直接影响到庄稼的下一年收成,所以旋耕机的设计至关重要。
旋耕机是与拖拉机配套完成耕、耙作业的耕耘机械。因其具有碎土能力强、耕后地表平坦等特点,而得到了广泛的应用:同时能够切碎埋在地表以下的根茬,便于播种机作业。为后期播种提供良好种床。按其旋耕刀轴的配置方式分为横轴式和立轴式两类。正确使用和调整旋耕机,对保持其良好技术状态,确保耕作质量是很重要的。具有打破犁底层、恢复土壤耕层结构、提高土壤蓄水保墒能力、消灭部分杂草、减少病虫害、平整地表以及提高农业机械化作业标准等作用。
目前旋耕机械的研究还不是特别多,随着社会经济的不断发展,劳动力成本不断提高解决耕作的问题日显突出,因此急切需要机械设备来解决这个问题。目前我国对土地耕作效率很低,费时费力,成本代价大。我国对于旋耕机的研究还处于初级阶段,相关技术功能性能还有待进一步提高。
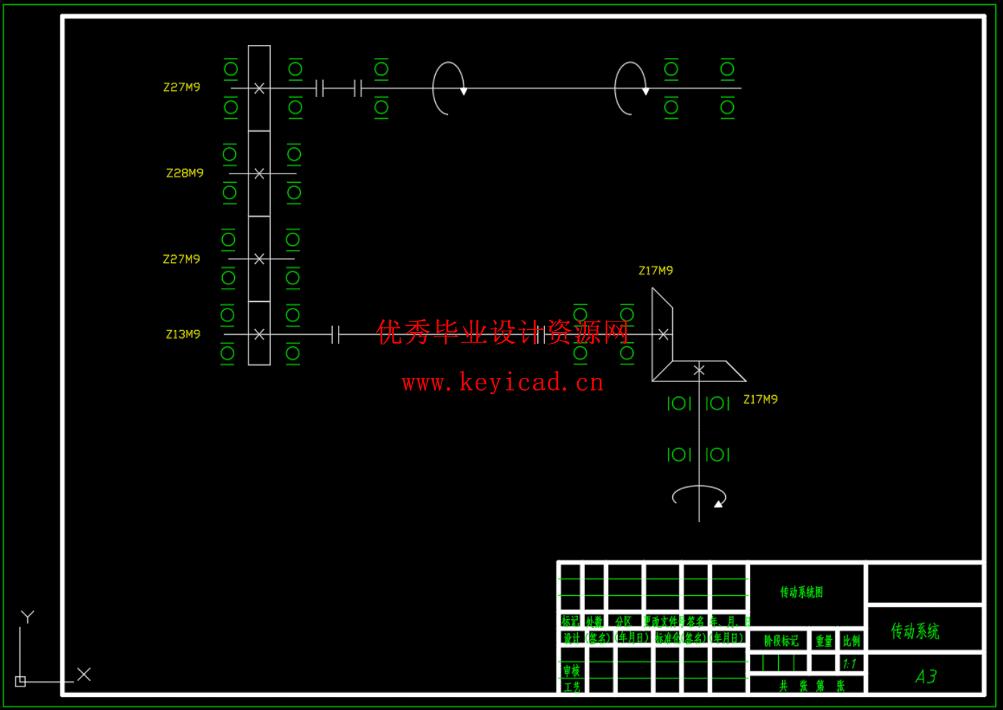
本文设计的是一种新型的旋耕机的齿轮箱传动设计,由中间齿轮箱组件和侧齿轮箱组件共同构成了整个旋耕机的传动系统,实现了最优旋耕速度。通过拖拉机输出转速经过两个齿轮箱共同减速到旋耕刀轴上,使旋耕刀以最优的旋耕速度进行作业,保证了效率和旋耕效果。
本设计对现有国内外旋耕机的现状进行研究和分析,并进行创新设计、研究。在我现有的机械的基础上并借鉴国外的研究手段、机构原理进行研究和分析,制定本机的传动系统的总体设计方案,设计一种新型的旋耕机传动系统,提高了效率,降低了成本,是种新型的设计方案,有着广阔的前景,关键词 新型;降低成本;有效;效率;
目录
1 绪论
1.1 课题研究背景
1.2 研究现状
1.3 研究目的和意义
1.4 主要研究和设计内容
2 旋耕机齿轮箱的整体设计与分析
2.1 基本参数设定
2.2 传动系统整体分析
2.3 齿轮箱的结构设计
2.3.1 中间齿轮箱的结构设计
2.3.2 侧齿轮箱的结构设计
3 传动系统的设计计算与校核
3.1 确定传动装置的效率
3.2 确定传动装置的总传动比和分配传动比
3.3 动力学参数计算
3.3.1 各轴转速
3.3.2 各轴输入功率
3.3.3 各轴输入转矩
3.4 齿轮参数的计算
3.4.1 选定齿轮类型、精度等级、材料及齿数
3.4.2 按齿面接触疲劳强度设计
3.4.3 调整小齿轮分度圆直径
3.4.4 确定传动尺寸
3.4.5 校核齿根弯曲疲劳强度
3.5 轴的设计与校核
3.6 中间齿轮箱轴承的计算与校核
3.5 中间齿轮箱键的计算与校核
4 铸件箱体加工基本原则
4.1 零件毛坯的确定
4.2 定位基准的选择
4.3 加工工艺路线的拟定
总结
参考文献
说明书

三维模型
CAD图纸
