摘要
矿用液压支架作为煤矿井下支护的关键设备,其液压缸的性能直接关乎支护系统的稳定性与作业安全性。传统液压元件设计多依赖经验公式与物理样机试验,存在研发周期长、成本高、难以全面预测复杂工况下性能的问题。随着计算机仿真技术的进步,基于虚拟样机的设计方法逐渐成为提升液压元件设计效率与可靠性的重要手段。本文首先基于SolidWorks完成液压支架的三维参数化建模,精确还原其几何结构与材料特性;随后导入Composer平台进行多体动力学仿真,通过设置典型工况边界条件,模拟液压缸在支护过程中的伸缩运动、压力分布及应力集中现象,为液压元件的优化设计提供新的技术路径。
关键词:矿用液压支架;三维建模;COMPOSER仿真
目录
1 前言 4
1.1 研究背景与意义 4
1.2 Composer仿真技术概述 4
1.3 国内外研究现状 5
1.4 本文主要研究内容 6
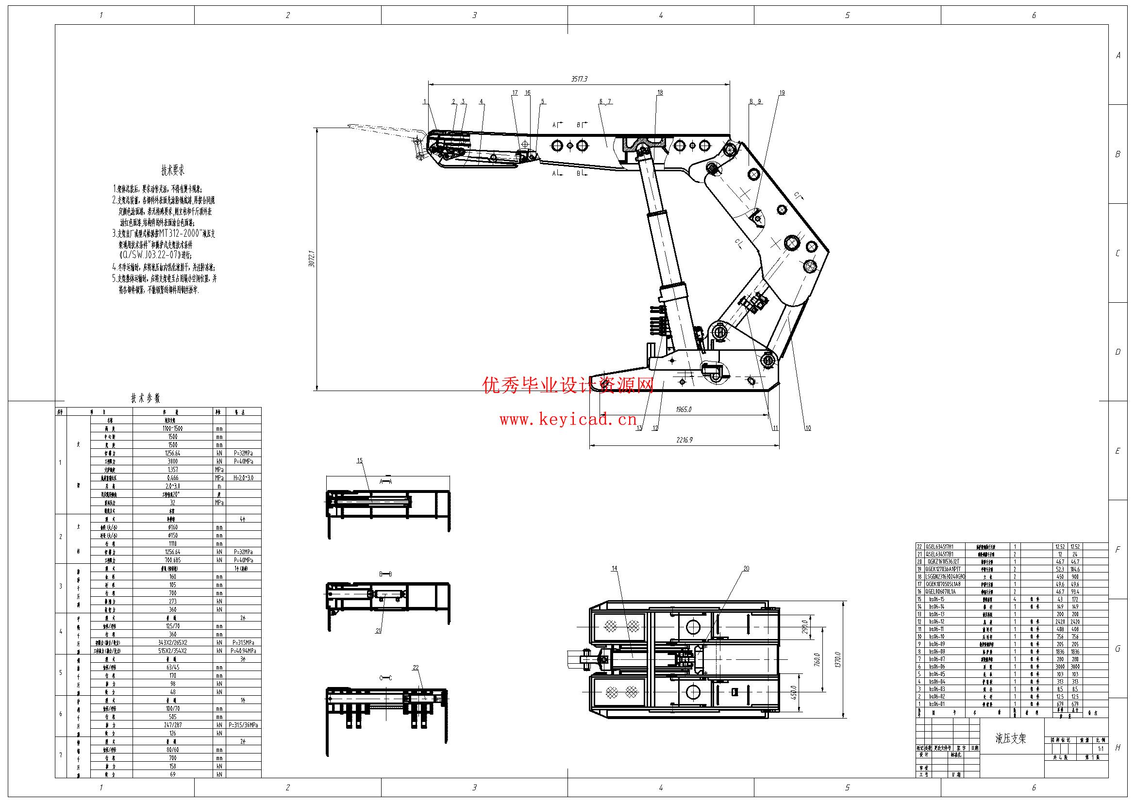
2 矿用液压支架总体方案设计 7
2.1 设计原则 7
2.2 主体结构组成 7
2.3 关键参数确定 8
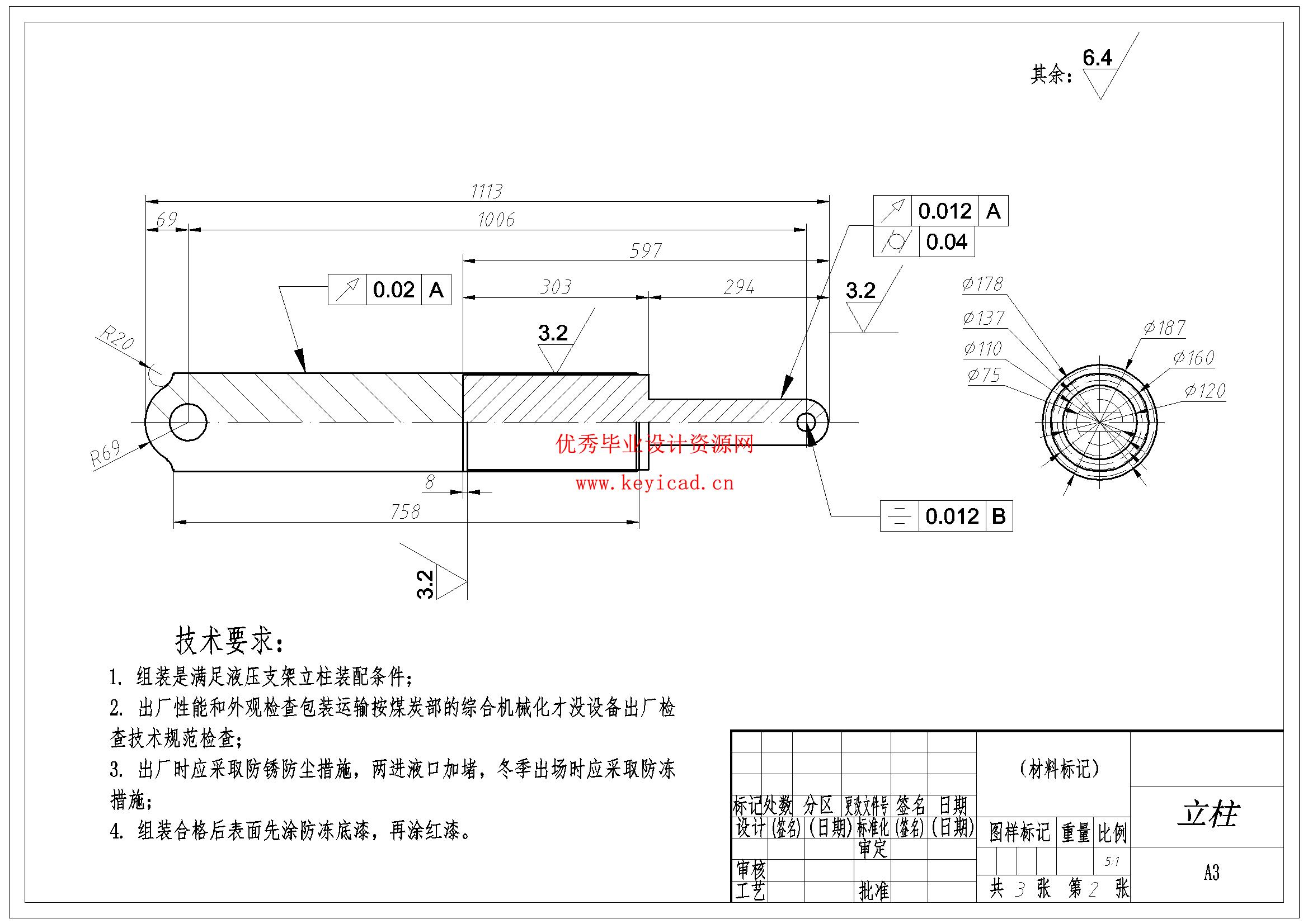
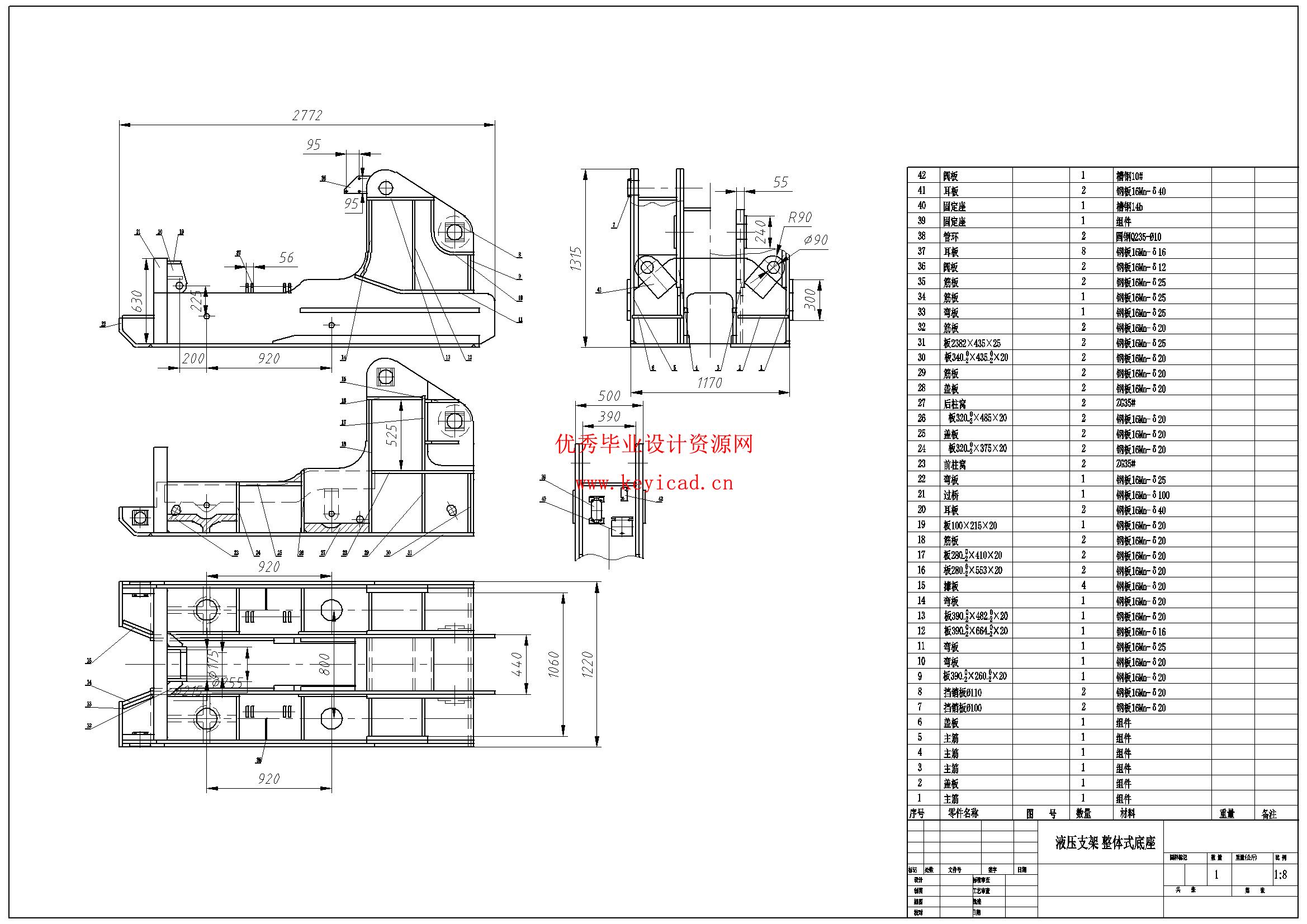
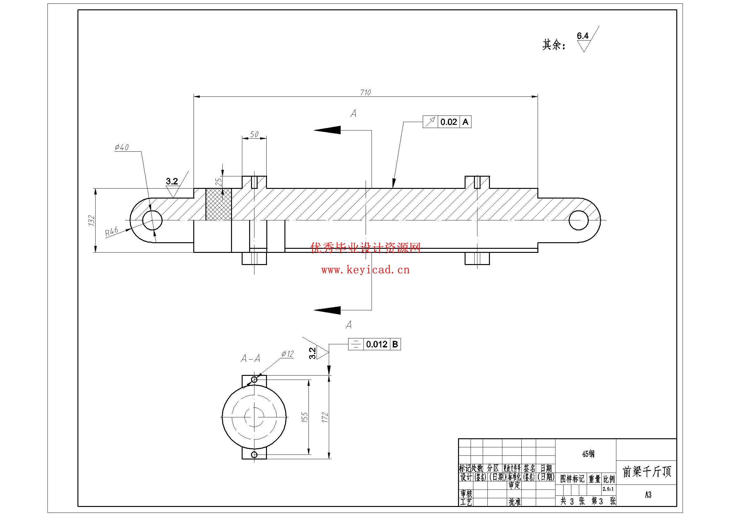
3 矿用液压支架三维模型建立 10
3.1 Solidworks概述 10
3.2 零件模型绘制 10
4 矿用液压支架COMPOSER仿真 16
4.1 导入三维模型 16
4.2 液压支架的爆炸 17
[参考文献] 19
附 录 20
致 谢 21
说明书

三维模型

Compser仿真

CAD图纸
文件列表

