摘要
本文研究了专用多轴半自动钻床的设计,旨在提高多孔工件加工效率和降低劳动强度。研究通过确定钻床整体方案,设计主传动和进给传动系统,选择电动机功率和型号,并详细设计各传动部件,包括带轮、 传动系统关键部件的选型与校核分析。主传动链采用带传动、直齿圆锥齿轮及直齿圆柱齿轮的组合形式,进给传动系统则通过带传动、蜗杆传动与凸轮机构实现功能整合。运用有限元分析方法对主轴设计进行力学性能评估,以确保其满足实际工况要求。研究结果表明,设计的钻床能有效解决多孔工件加工中的效率和劳动强度问题,具有一定的现实意义和市场应用价值。
关键词:传动方案;带传动;直齿圆柱及圆锥齿轮;蜗杆传动;凸轮机构
目录
专用多轴半自动钻床的设计—机械进给 I
摘 要 I
Design of a Specialized Multi-Spindle Semi-Automatic Drilling Machine – Mechanical Feed II
Abstract II
1 绪论 1
1.1问题的背景和意义 1
1.2问题的描述 1
1.3钻床的研究现状 2
1.3.1钻床的概述 2
1.3.2钻床的研究现状 2
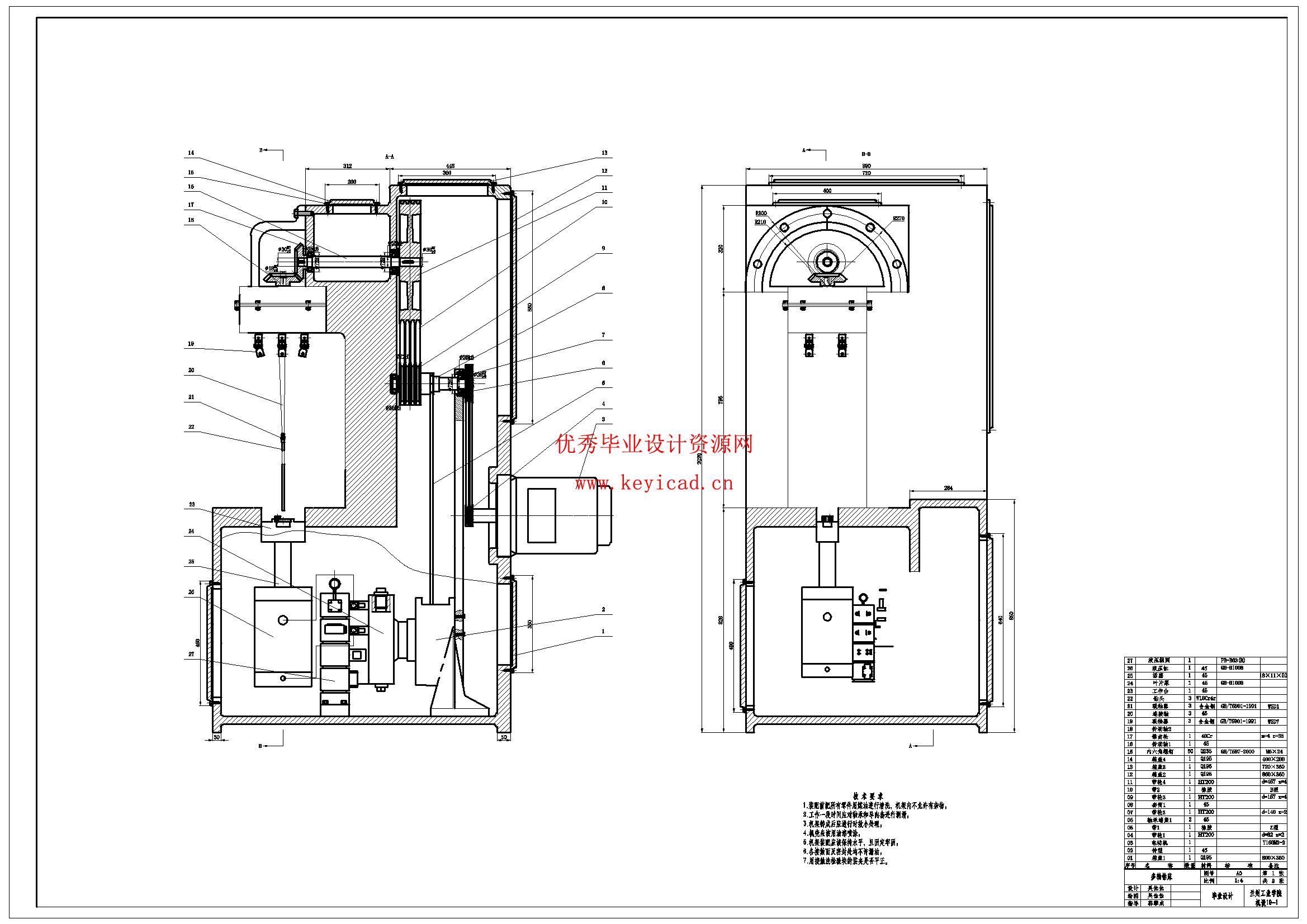
2钻床的总体设计 2
2.1 钻床设计的任务要求 2
2.2传动系统方案的确定 2
2.2.1主传动系统传动方案的确定 2
2.2.2进给传动系统传动方案的确定 3
2.2钻床系统原理图 4
2.3电动机的选择 5
2.4.1电动机功率的确定 5
2.4.2电动机转速的确定 8
2.5 传动系统的运动和动力参数 9
2.5.1 主传动系统的运动和动力参数 9
2.5.2 进给传动系统的运动和动力参数 11
3 机床传动系统的设计 12
3.1 机床主传动系统的设计 12
3.1.1 带传动的设计 12
3.1.2 直齿圆锥齿轮传动的设计 16
3.1.3 直齿圆柱齿轮传动的设计 20
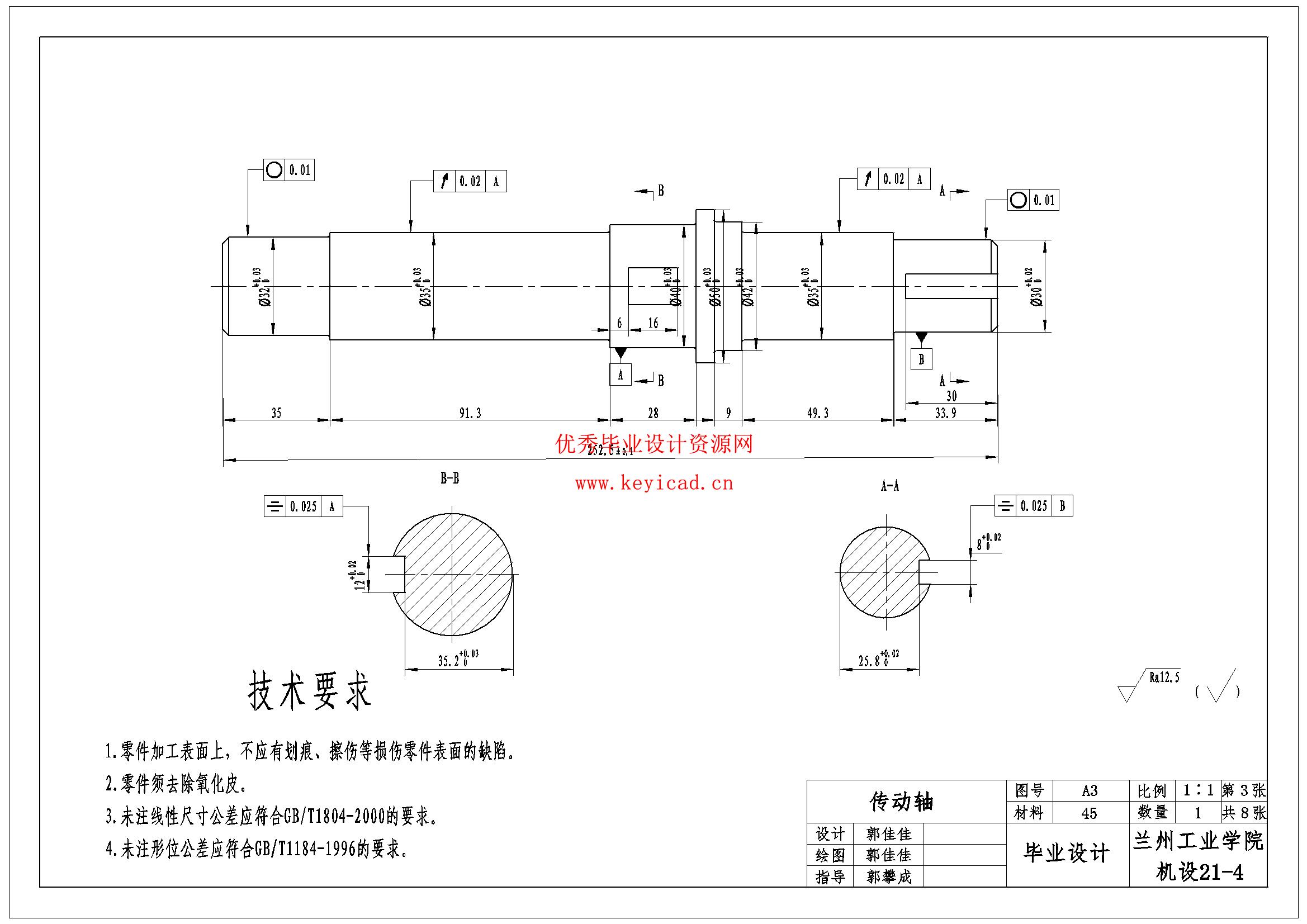
3.1.4 传动轴的设计 24
3.2 机床进给传动系统的设计 32
3.2.1 带传动的设计 32
3.2.2 涡轮蜗杆传动的设计 35
3.2.3 凸轮机构的设计 38
3.2.4 进给传动系统传动轴的设计 41
3.2.5 离合器的选择 47
4 关键零部件有限元分析 48
4.1 有限元分析简介 48
4.2 基于的静力学分析 48
4.3 主轴有限元分析 50
总结 54
致 谢 55
说明书

三维模型

CAD图纸
文件列表

