摘要
本文研究液压教学工作台液压系统的设计,旨在构建一个功能全面、操作简便的实验平台,满足液压传动课程的教学需求。通过三维建模与液压元件选型,确定了系统 总体结构及工作原理。详细计算了液压缸的主要参数,包括直径、活塞杆强度及推力拉力等,并据此选择了合适的液压泵、驱动电动机及其他液压元件。研究结果表明,所设计的液压系统能实现无级调速、平稳运行,并具备自动化控制功能。该系统为液压传动技术的教学和实践提供了有力支持。
[关键词] 液压传动;系统设计;液压缸;液压泵;实验平台
目录
1 前言 4
1.1 液压传动特点 4
1.2 液压传动优势 4
1.3 液压系统的设计步骤与设计要求 6
2 总体设计方案及工作原理 8
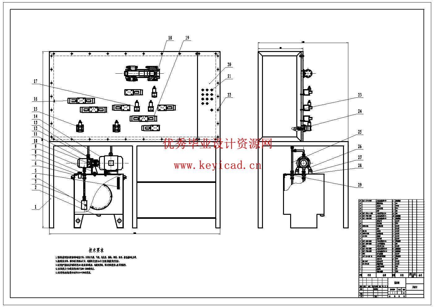
2.1 总体结构设计 8
2.2工作原理 8
2.3 本章小结 9
3 液压系统设计 10
3.1 液压执行元件的配置 10
3.2 液压缸的主要结参数 10
3.3活塞杆强度计算 11
3.4液压缸活塞的推力及拉力计算 11
3.5活塞杆最大容许行程 13
3.6液压缸内径及壁厚的确定 13
3.7 液压泵及其驱动电动机的选择 14
3.8其他液压元件的选择 17
3.9 液压系统压力损失验算 21
第4章 实验台面板的结构与设计 23
4.1实验台面板的结构 23
4.2实验台面板的设计 23
[参考文献] 26
附 录 27
致 谢 28
说明书

三维模型

CAD图纸
文件列表

