摘要
本毕业设计的核心任务是实现一款农业用途的小型饲料破碎机的全面传动设计以及部分结构设计。设计流程的起点是对饲料破碎机的构造组成、加工方式、特点及其在农业机械领域的适用性进行详细阐述。探讨该破碎机的当前研究进展和潜在的发展方向。在深入分析相关数据、阐释传动机制并筛选出合适的设计方案后,将依据既定的设计标准和计算选择的基本原则,结合特定的技术参数,进行详尽的设计和计算工作。主要包括破碎机的整体设计、电机的选择以及传动系统的构建。此外,本设计还涉及主轴结构尺寸的规划以及对主要零部件进行校验和核实。最终,设计工作将扩展至破碎机的各个关键部分,包括切割刀片、破碎辊、进料机构以及机架的尺寸设计和选择。通过这一系列的设计步骤,旨在确保破碎机的功能性、效率和可靠性,以满足现代农业生产的需求。
关键词:饲料破碎机;传动;主轴;切刀
目录
摘 要 I
Abstract II
绪 论 1
1.1设计饲料破碎机械的目的、意义 1
1.2 国内外研究现状 1
1.2.1 国外研究现状 1
1.2.2 国内研究现状 3
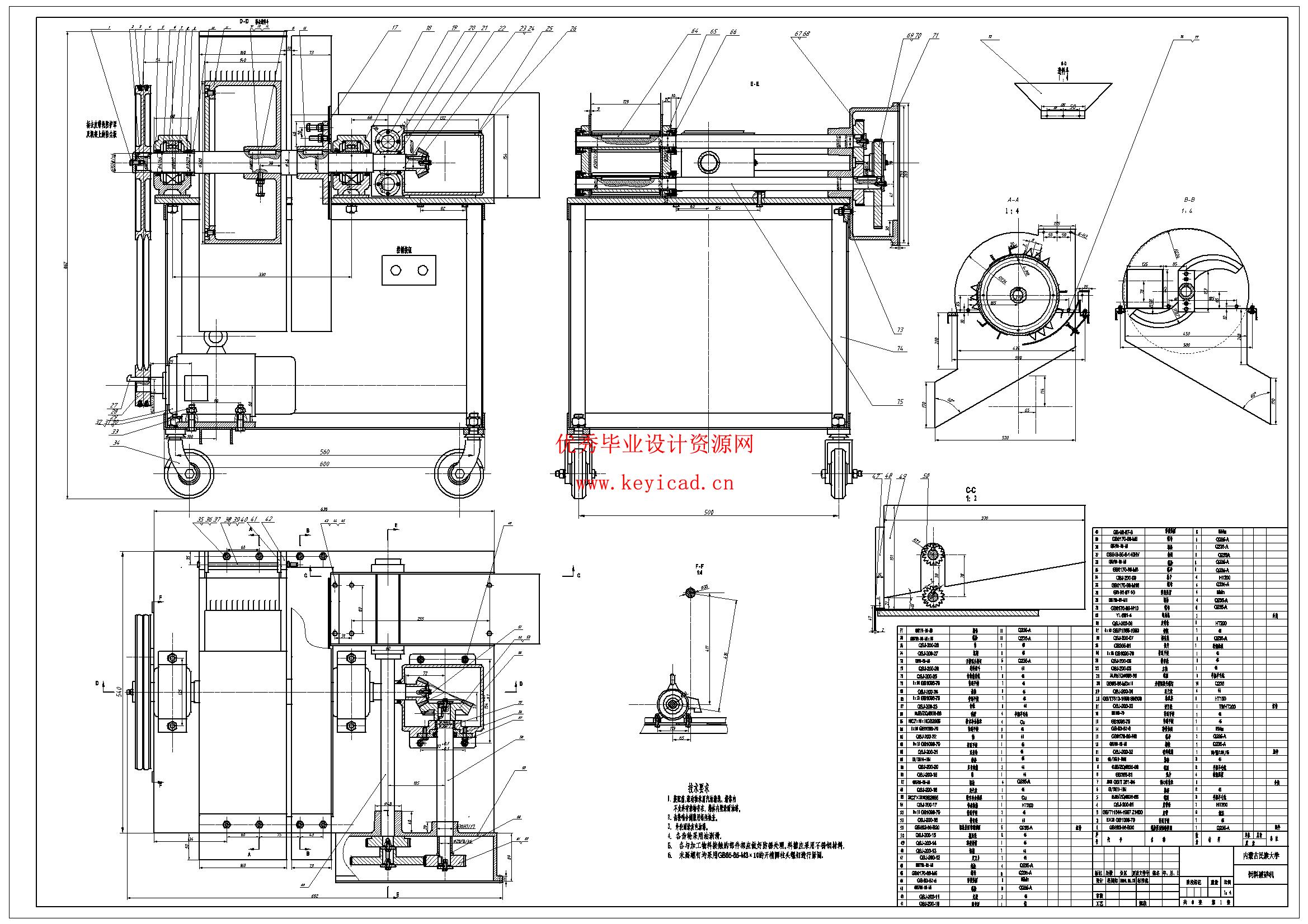
总体设计 7
2.1 方案筛选比较 7
2.2 设计方案的确定 8
2.3 机构传动原理简述 10
传动装置设计 12
3.1 整体计算 12
3.1.1 总传动比的分析计算 12
3.1.2 传动比的分配 13
3.2 电动机的选型 13
3.3 V带传动部分的设计 13
3.3.1 V带轮设计的要求 13
3.3.2 V带轮的材料 14
3.3.3 V带轮的结构尺寸 14
3.3.4 V带轮的传动设计 14
3.3.5 V带轮的结构设计 17
3.3.6 V带轮的结构参数 17
3.4 锥齿轮的设计 18
3.4.1 齿轮材料的选择 18
3.4.2 齿轮精度等级的选择 18
3.4.3 按齿轮齿面接触强度设计 18
3.4.4 按齿轮齿根弯曲强度校核 21
3.4.5 零件图和大小齿轮的啮合示意图 23
3.5 圆柱斜齿轮的设计 24
3.5.1 选定齿轮的精度等级、材料及齿数 24
3.5.2 按齿轮齿面接触强度设计 24
3.5.3 按齿轮齿根弯曲强度设计 26
3.5.4 几何计算 28
3.5.5 验算 29
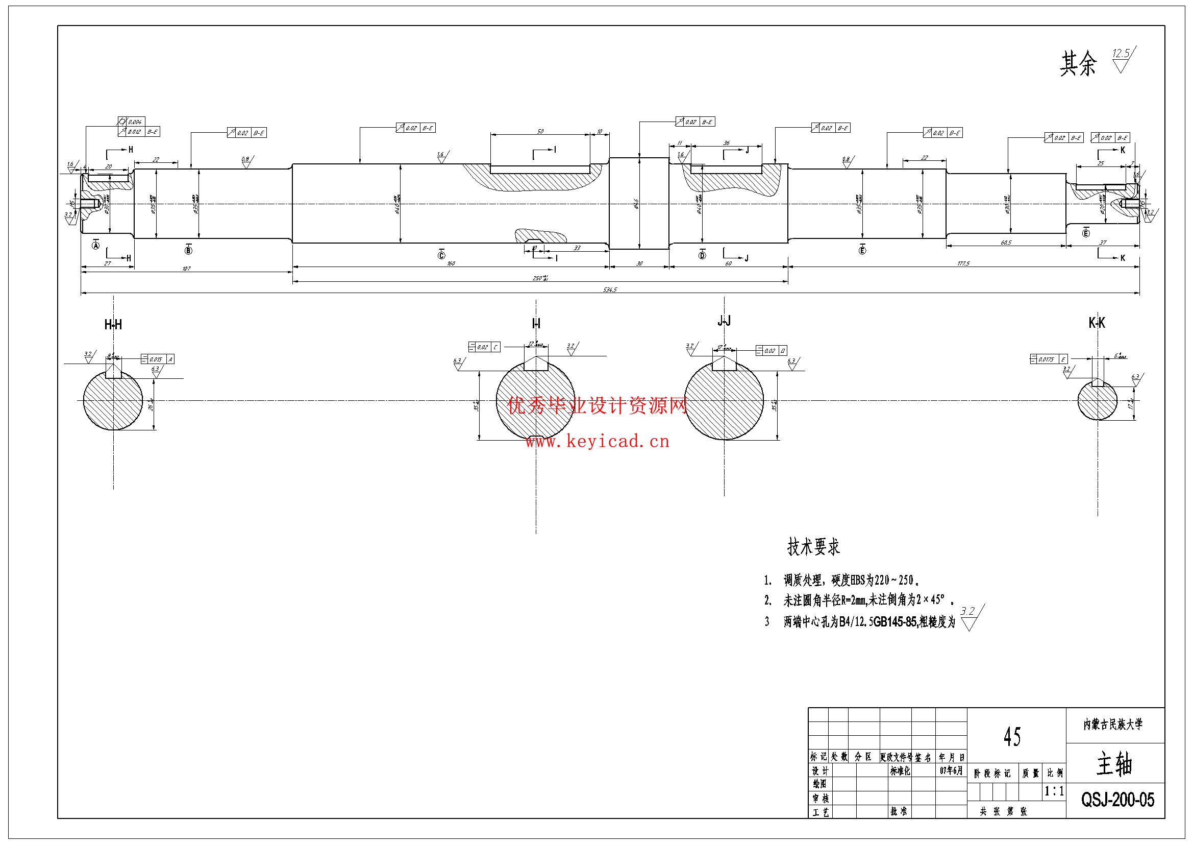
3.6 轴的设计与校核 30
3.6.1 主轴I及其轴承装置、键的设计 30
3.6.2 传动轴II的设计 32
3.6.3 传动轴III、IV的设计 33
3.6.4 主轴I及其轴承装置、键的校核 33
4 切刀设计及机架设计 41
4.1切割、粉碎基本概念 41
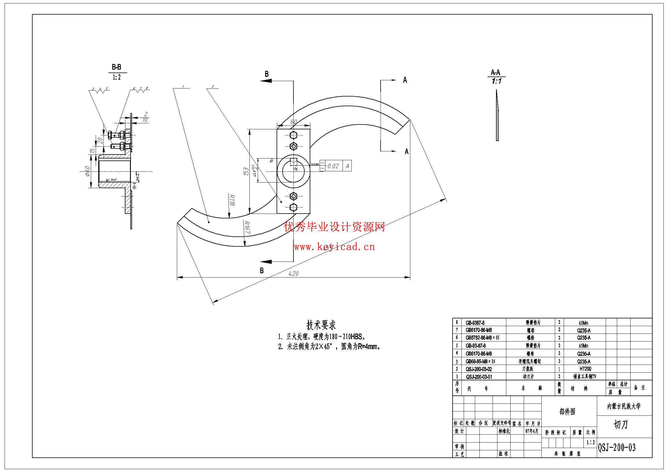
4.2 切刀部分的设计 41
4.1.1 切刀材料及要求 41
4.2.2 常见刀片 41
4.2.3 切刀的工作方式分析 41
4.2.4 物料钳住所需条件 43
4.2.5 刀的安装 44
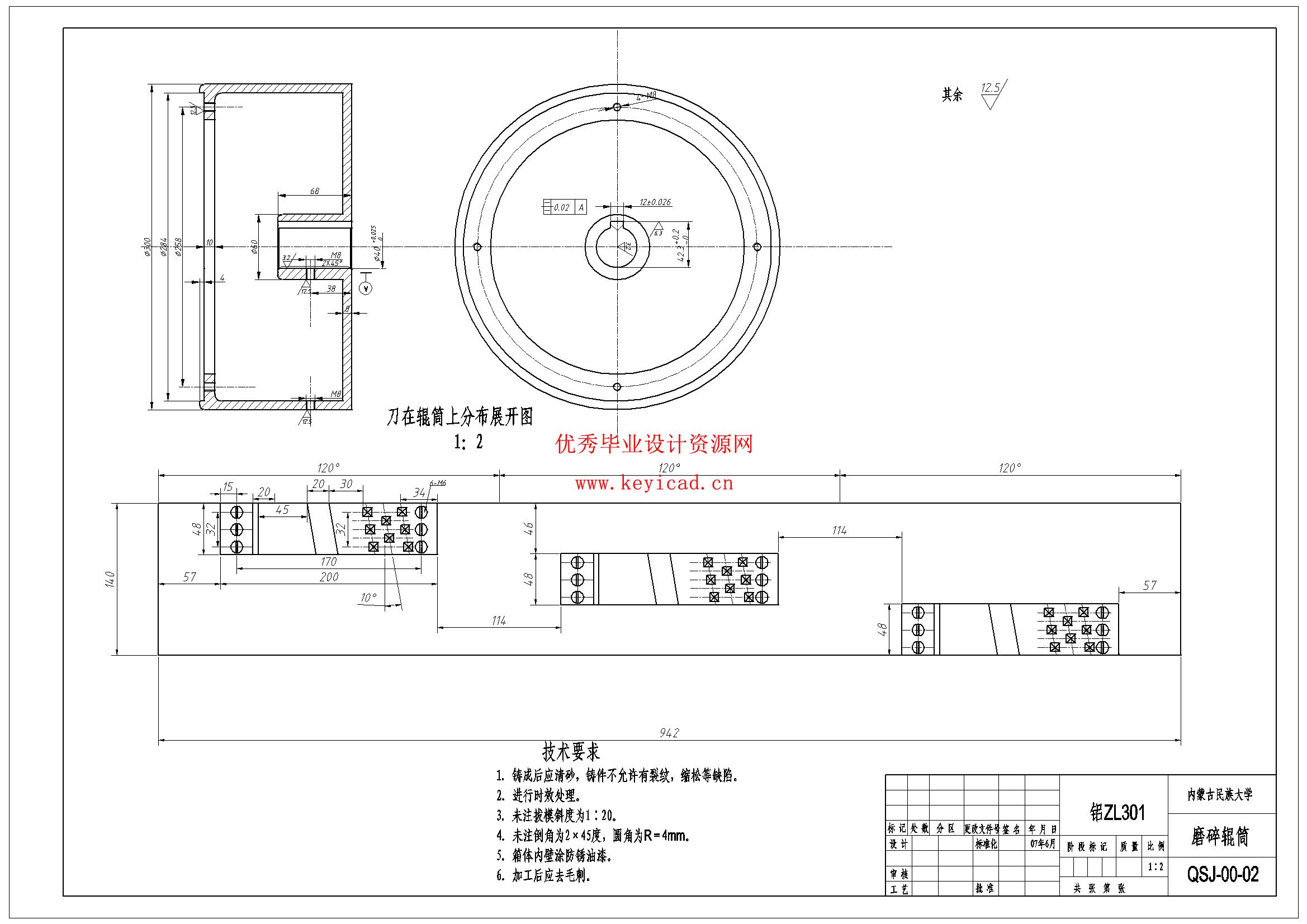
4.3 破碎辊筒及其刀的设计 45
4.3.1 破碎辊筒上刀的设计 45
4.3.2 刀在破碎辊筒上的位置 46
4.3.3破碎辊筒的设计 46
4.4 自动进给机构设计 46
4.5 青饲破碎机机架设计 47
结 语 49
参考文献 50
致 谢 51
说明书

三维模型

CAD图纸
文件列表

