摘要
本文针对茶叶包装机的结构设计进行了深入研究。首先,在绪论部分阐述了茶叶包装机选题的背景及意义,分析了国内外在茶叶包装机领域的研究现状,指出了当前茶叶包装机存在的问题,并明确了本文的主要研究内容。
在总体方案设计部分,根据茶叶包装的基本要求,设计了工艺流程,并提出了具体的方案设计。该方案详细描述了茶叶包装机的工作原理,包括供膜、内袋升降、振动下料、称重、内袋封合、内袋切割及内袋传送等关键步骤,为后续的零部件设计提供了理论基础。
在关键零部件设计部分,重点对供膜机构、内袋升降机构、振动下料机构、称重模块、内袋封合装置、内袋切割装置及内袋传送装置进行了详细设计。其中,内袋升降机构采用气缸驱动,实现了内袋的精准定位;内袋封合装置采用电阻丝加热方式,确保了封口的牢固性;内袋切割装置则通过气缸推动切片刀,实现了封口的快速切断。
此外,本文还对其他零部件如机架、电磁阀及气路附件、气源处理元件及气缸传感器进行了选型与设计,确保了茶叶包装机的整体性能和稳定性。
关键词:茶叶包装机;结构设计;总体方案;供膜机构;封合机构
目录
1 绪论 4
1.1茶叶包装机选题的背景及意义 4
1.2 国内外研究现状 4
1.2.1国外研究现状 4
1.2.2国内研究现状 5
1.3 茶叶包装机尚存问题 7
1.4主要研究内容 8
2 总体方案设计 9
2.1 茶叶包装机的基本要求 9
2.2 工艺流程设计 9
2.3方案设计 10
2.4工作原理 12
2.4本章小结 12
3 关键零部件设计 13
3.1 供膜机构设计 13
3.2 内袋升降机构 14
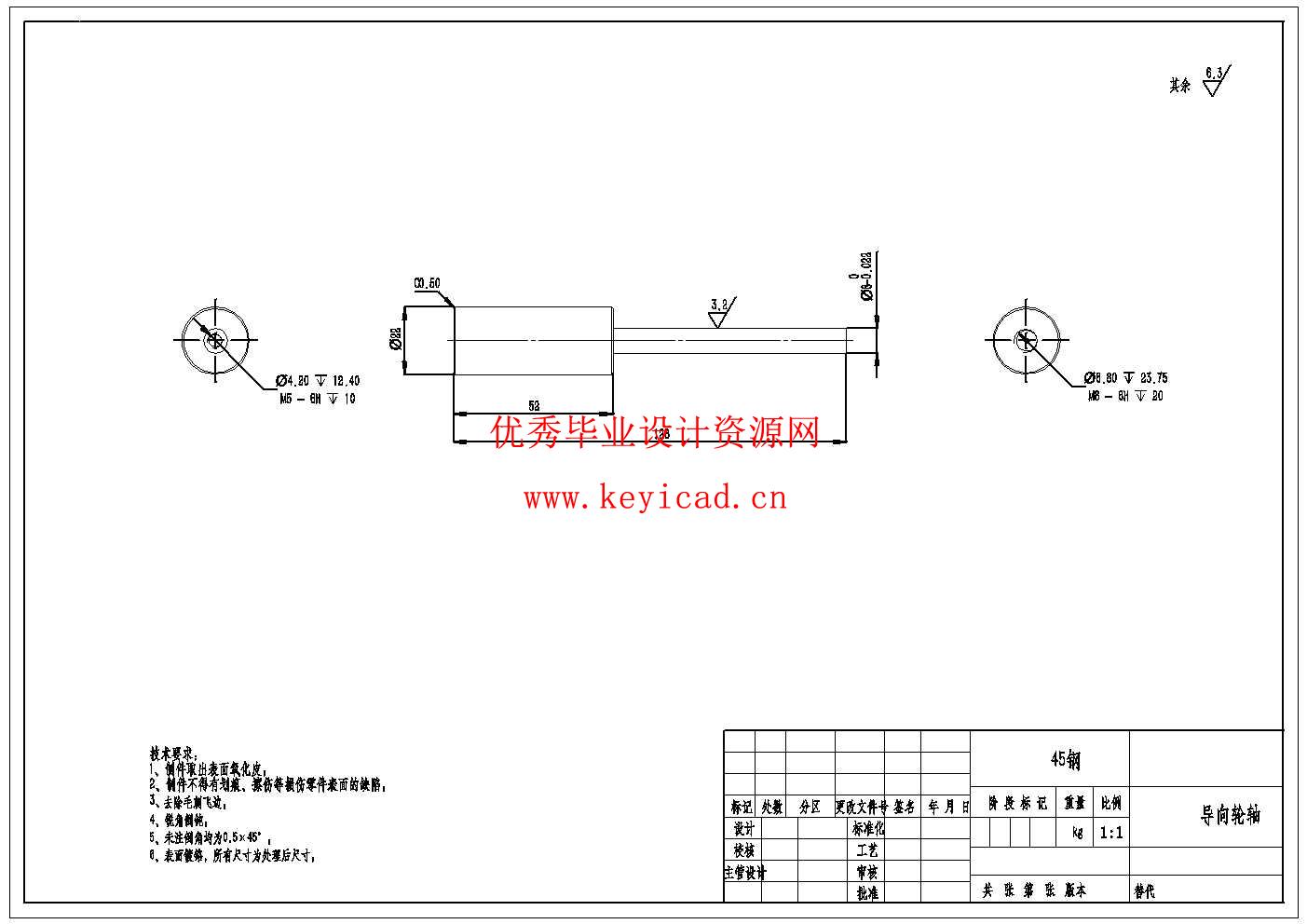
3.3 振动下料机构 18
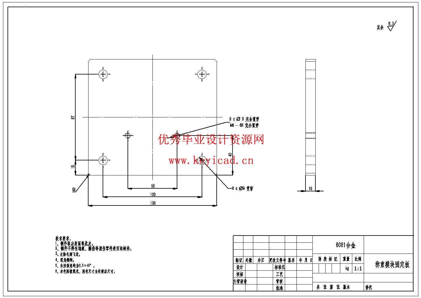
3.4 称重模块的设计 19
3.5 内袋封合装置的设计 20
3.6 内袋切割装置的设计 21
3.7 内袋传送装置的设计 22
4 其他零部件设计 25
4.1机架设计 25
4.2电磁阀及气路附件的选型 26
4.3气源处理元件的分类及应用 26
4.4气缸传感器的选型 27
结 论 29
致 谢 30
参考文献 31
说明书

三维模型

CAD图纸
文件列表

