摘要
本课题针对设计的是一种五自由度液压机械手的结构设计及三维建模,对五自由度液压机械手主要组成结构进行研究,对机械手的液压系统进行研究。针对现在市场上的机械手结构复杂、驱动力小、造价成本高、效率低等问题,本文对国内外市场产品现状进行分析,综合设计出一种五自由度液压机械手,利用板料焊接而成的大臂、小臂等基本结构组件,保证强度的同时,减少了材料使用,降低了重量;采用液压驱动马达和油缸,可以获得较大驱动力;同时,对整个机械结构进行优化设计对大臂、小臂和夹持部分进行受力分析、传动系统计算、液压系统设计、液压控制元件的选型等。并利用 Solidworks 三维建模软件的建模、装配体等功能进行辅助设计和优化改进设计结构的不足,将设计得到的参数通过三维建模模型展示验证。通过本次设计,可以综合各产品优势,同时考虑实际工作需求,结合液压驱动设计出了一种新型的板料液压折弯机及其液压系统,这种液压系统不仅造价低,同时拥有驱动力大、结构简单、性能稳定、效率高等优点,前景很广阔,是市场急需的种设计。
关键词:五自由度:液压:机械手;结构设计;SOLIDWORKS三维建模
目录
1 前言
1.1 研究背景
1.2 国内外研究现状
1.3 研究目的
1.4 研究内容
2 五自由度液压机械手总体结构设计计算
2.1 基本参数
2.3 零部件结构设计
2.3.1 底座组件结构设计
2.3.2 大臂组件结构设计
2.3.3 小臂组件结构设计
2.3.4 夹持组件结构设计
2.4 夹持受力分析
3 液压系统的设计与分析
3.1 基本参数设定
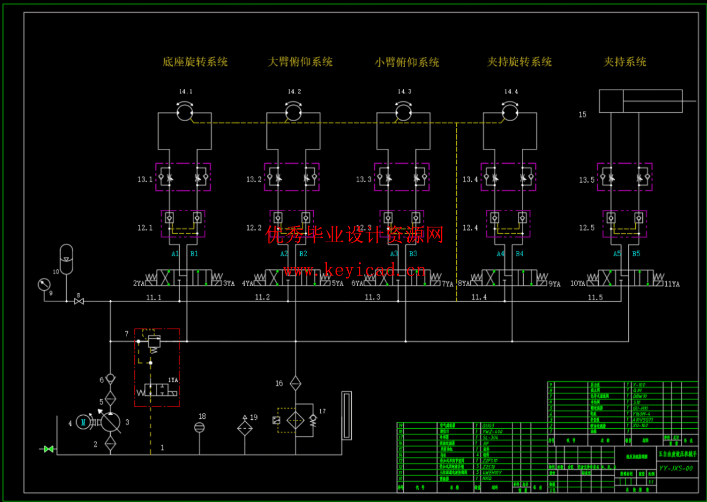
3.2 液压系统原理图的设计
3.3 液压系统原理图的分析
4 液压元件的计算与选型
4.1 压力参数设定
4.2 马达的参数计算
4.3 油缸的参数计算
4.3.1 缸径设计计算
4.3.2 缸筒壁厚设计计算
4.3.3 缸杆设计计算
4.4 液压泵的选型
4.5 电机功率的确定
4.6 油箱容积计算
4.6.1 油箱容积计算
4.6.2 油箱外形尺寸计算
4.7 液压元件选择
5 三维建模
5.1 大臂侧板建模
5.2 大臂主动圆柱齿轮建模
5.3 底盘旋转轴下法兰盘建模
5.4 大臂齿轮回转轴建模
5.5 大臂齿轮回转轴端盖建模
6 总结及展望
致谢
参考文献
说明书

三维模型

CAD图纸
