摘要
摘要: 随着机械臂行业的不断发展和进步,越来越多的高新技术应用于机械臂上,从而使得机械臂在工业生产中的应用不断的深化。机械臂依靠先进的高新自动控制技术、关节灵活的抓取搬运功能、集中控制的智能化集成度以及先进的传感器技术而得以广泛的应用。
现阶段货物搬运的高效精准成为现代城市物流行业高速发展的一项重要任务,利用智能化机器设备代替人工搬运,不仅可以节约大量的成本,同时还可以实现高效精准的智能化搬运,效率、精准度都达到最优。鉴于此,提出一种新型的液压驱动的六自由度搬运机器人的设计,通过三维建模分析、机构分析、结构分析、参数计算、功能优化、液压系统以及减速器匹配选型等,设计一种高精度、高灵敏度、高智能化的六自由度搬运机器人。
本文介绍的是一种液压驱动的液压机器人结构及其液压系统的设计。通过液压传动控制,液压泵站控制液压缸伸缩来实现抓取,通过液压马达来实现底座旋转、大臂俯仰。小臂俯仰以及腕部俯仰的动作。进而满足不同高度和方位的工作位置,通过对液压控制的整机结构设计、受力分析、液压系统设计分析及计算、校核、选型等。最终实现所需功能。
本文设计的液压机器人及其液压系统是一种新型的设计,通过液压传动中的油缸和马达,实现伸缩俯仰和旋转,通过对功能工况分析后,设计液压系统原理图,设计整机结构,进行结构分析,受力计算以及液压系统的计算选型与校核,最终实现提升效率,降低成本的目标,是一种新型的设计方案,有着广阔的前景。
关键词:液压机器人;结构设计;液压系统设计;效率;新型;广阔前景
目录
第一章 绪论
1.1 目的、意义
1.2 国内外发展状况
1.3 主要设计内容
第二章 液压机器人本体结构设计
2.1 液压机器人的简介
2.2 液压机器人的功能
2.3 液压机器人的结构设计
2.4 液压机器人的功能分析
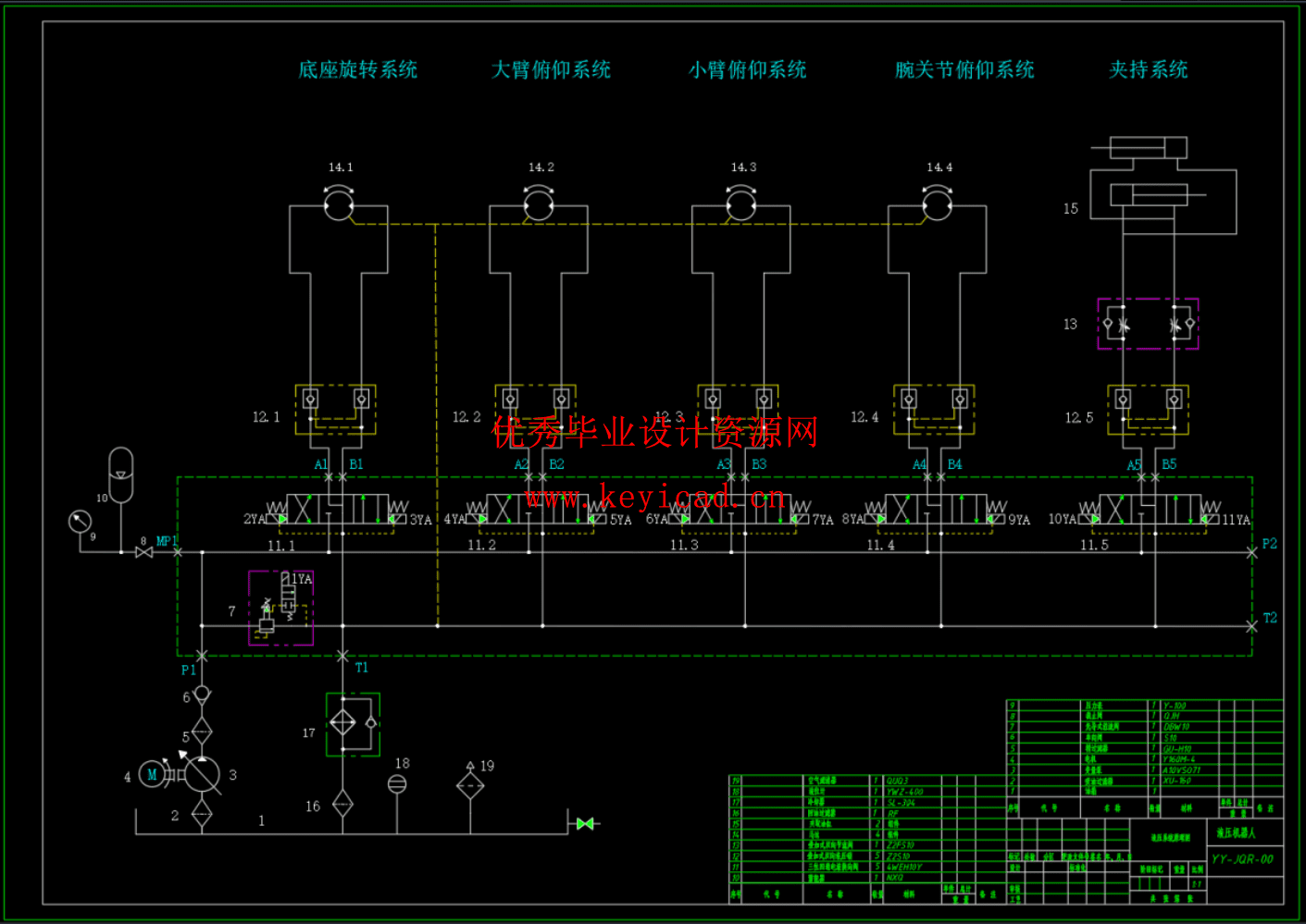
第三章 液压机器人液压系统设计
3.1 液压机器人液压系统方案设计
3.1.1 液压执行器的选择
3.1.2 液压控制阀的选择
3.2 液压原理图设计
第四章 液压机器人液压系统设计计算与校核
4.1 液压系统基本参数
4.2 受力分析
4.4 夹持油缸尺寸计算
4.5 液压马达的选型计算
4.5.1 底座旋转马达的选型计算
4.5.2 大臂马达的选型计算
4.5.3 小臂马达的选型计算
4.6 液压泵的选型
4.8 油箱容积计算
4.10 液压元件选择
第五章 液压机器人管路布置
5.1 液压管路布置原则
5.2 液压管路选择
5.3 液压管路三维设计
5.4 液压管路二维设计
总结与展望
参考文献
说明书

三维模型
CAD图纸

