摘要
汽车起重机作为一种重要的工程机械,广泛应用于建筑、物流、救援等领域。主臂作为汽车起重机的核心部件,其设计直接影响到整机的性能、安全性和工作效率。本文针对汽车起重机主臂的设计进行了深入研究,主要研究内容包括以下几个方面:
首先,分析了汽车起重机主臂的结构形式和工作原理,探讨了主臂在起重作业中的受力特点,包括轴向力、弯矩、剪切力等。基于此,提出了主臂设计的基本要求和设计准则,确保主臂在满足强度、刚度和稳定性的同时,尽可能减轻重量,提高整机的经济性和机动性。
其次,采用有限元分析方法对主臂进行了静力学和动力学仿真,模拟了主臂在不同工况下的应力分布和变形情况。通过仿真结果,优化了主臂的截面形状、材料选择和结构布局,确保主臂在极端工况下的安全性和可靠性。
最后,结合实际工程案例,对设计的主臂进行了实验验证,测试了其在实际起重作业中的性能表现。实验结果表明,优化后的主臂在满足强度要求的同时,显著提高了起重机的作业效率和稳定性。
本文的研究为汽车起重机主臂的设计提供了理论依据和实践指导,对提升汽车起重机的整体性能具有重要意义。
关键词: 汽车起重机;主臂设计;有限元分析;结构优化;实验验证
目录
摘 要 III
Abstract IV
第1章 绪 论 8
1.1背景与意义 8
1.2国内外发展(应用)现状 9
1.3论文所做工作及思路 12
第2章 Solidworks设计基础 14
2.1 草图绘制 14
2.2 基准特征-参考几何体的创建 14
2.3拉伸、旋转、扫描和放样特征建模 14
2.4工程图设计 14
2.5装配设计 14
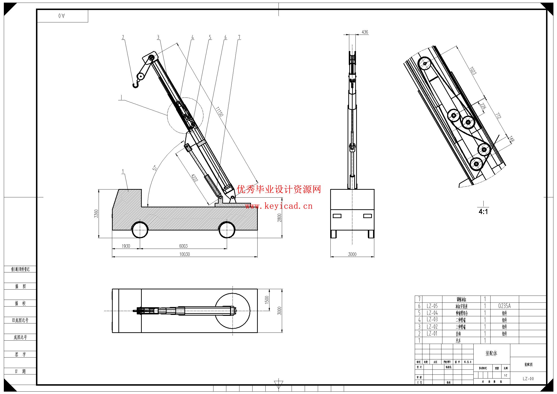
第3章 主臂伸缩机构的设计计算 16
3.1 臂架伸缩机构优化 16
3.2 臂架伸缩机构的驱动形式 18
第4章 起升机机构设计 20
4.1 起升机构的基本参数计算 20
4.2滑轮及滑轮组设计 23
4.3吊钩的设计与选用 25
4.4卷筒设计 26
第5章 起重臂的设计以及三维建模 29
5.1三铰点设计 29
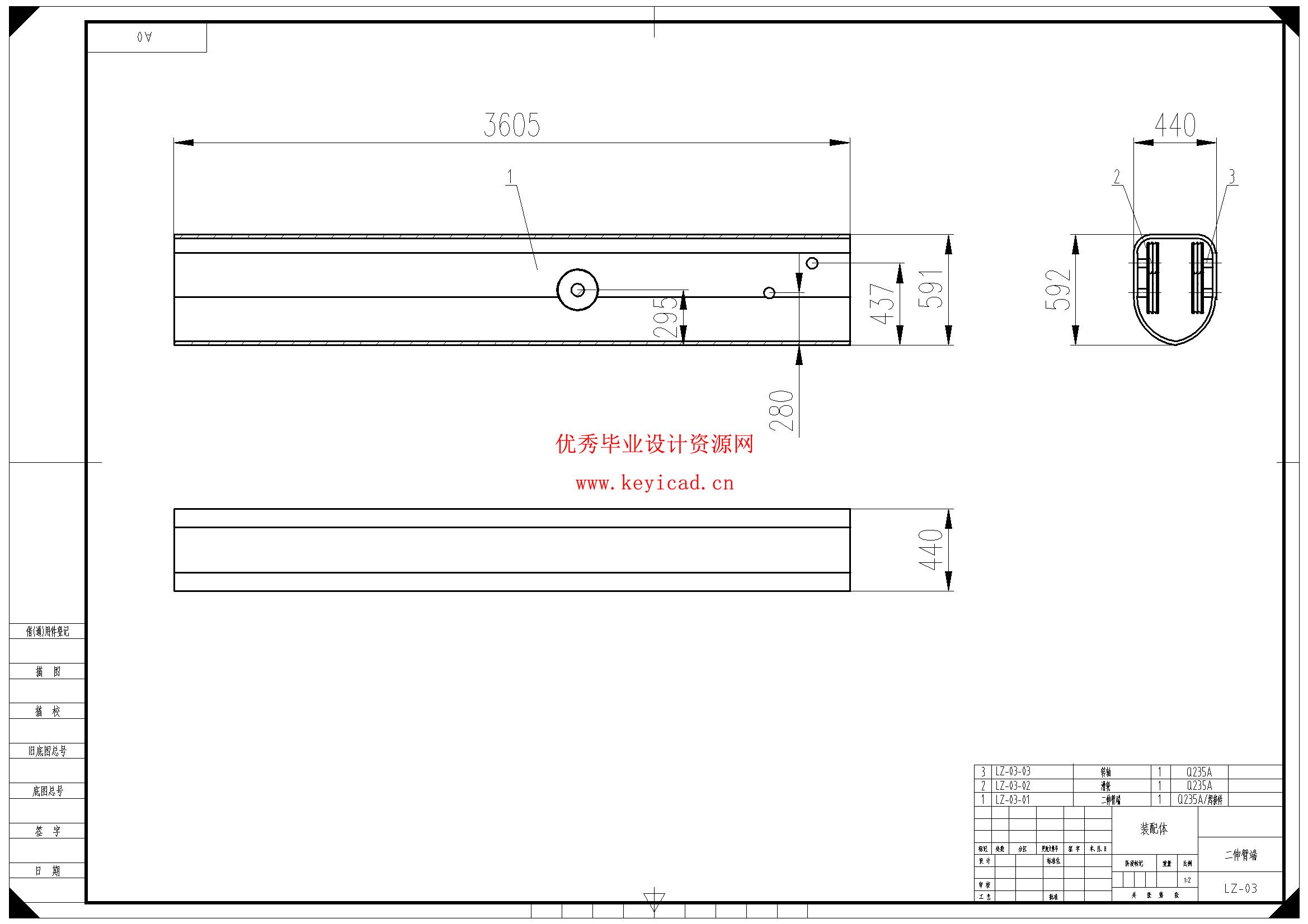
5.2起重臂设计 30
第6章 回转结构的设计 37
6.1回转支承的选用 37
6.2回转减速机的选用 40
6.3支腿反力计算 40
第7章 汽车起重机伸缩臂的有限元应力分析 42
7.1 基本臂的有限元分析 42
7 结 论 45
参考文献 46
致 谢 47
结 论 48
参考文献 49
附录1 标题 50
附录2 标题 51
致 谢 52
说明书

三维模型

CAD图纸
文件列表

